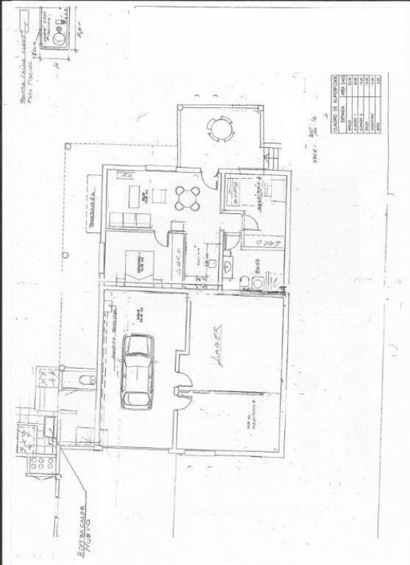
¡Una villa con muchas oportunidades ubicada en una de las zonas más populares de Alfaz del Pi! Una hermosa y magnífica villa construida en el año 2004, que se actualizó significativamente en 2013 con materiales de calidad. La propiedad es de 300 metros cuadrados, distribuidos en dos plantas. Está dividido en dos apartamentos independientes que le permiten a usted y a su familia, así como a sus amigos, permanecer cómodos; Pueden vacacionar cómodamente juntos. Si desea utilizar la villa como inversión, tiene la oportunidad de alquilar dos apartamentos; así como oportunidades para reconstruir el garaje para el apartamento # 3. Vea el boceto adjunto que muestra las propuestas para el apartamento en el garaje. El plan era hacer una cochera con espacio para 2 autos en la extensión del camino de entrada al garaje. El techo de la cochera se puede crear como una terraza fuera de la gran habitación en el primer piso. El área al aire libre alrededor de la casa es grande y espaciosa y toda el área está alicatada, lo que facilita su mantenimiento y limpieza. Más allá hay una piscina privada que se puede calentar hasta 30 grados y área de barbacoa. La casa tiene muy buenas condiciones de sol. Esta gran villa tiene cualidades como: - Calidad excepcional en construcción y acabados.- Ubicación central.- A poca distancia de la playa.-2 apartamentos independientes.-Garaje.- Piscina con nuevo sistema de sal, con posibilidad de calefacción a 30 grados.- Buenas condiciones de sol.- Grandes terrazas de azulejos, así como el área de la piscina al aire libre, están alicatados con cocina al aire libre.- Riego automático.-Refrigeración equipada en todas las habitaciones y salas de estar con sus propias bombas de calor. la casa en invierno se calienta mediante una bomba de calor de agua / aire que calienta las habitaciones a través de radiadores controlados termostáticamente.-Sistema Gassoppvarmings.-Abrepuertas automático en el camino de entrada.- A solo 5 minutos a pie, encontrará Reuma-Sol, unas vacaciones y centro de tratamiento, que tiene una buena selección de tratamientos de salud y bienestar. La planta principal tiene una gran sala de estar con chimenea y espectaculares vistas a la montaña en la zona, una amplia cocina con acceso a la terraza con sol en la mañana, perfecta para disfrutar del desayuno al aire libre, dos amplios dormitorios y dos baños, ambos con calefacción por suelo radiante. En la planta baja hay un apartamento con entrada independiente, sala de estar y cocina conectados a una solución abierta con dos dormitorios y un amplio baño con calefacción por suelo radiante. Amplio garaje con acceso a una habitación extra y un gran trastero.

Contactanos
iamge
Inmobiliaria Taboo

Inmobiliaria Taboo situada en el Albir, se pone a su servicio para ayudarle a encontrar la vivienda que esta buscando.

Cada propietario tiene una relación especial con su casa, y en inmobiliaria Taboo entendemos la importancia de esto por ellos trabajamos con profesionalidad y seriedad.

¿Tienes alguna duda? Pregunta, escucha, reflexiona y acertaras! Inmobiliaria Taboo - Albir te ayudara en todo.

Contactanos